



308 EL PASO ST - COMING SOON
308 EL PASO ST, AUSTIN, TX 78704
5 Bed | 4.5 Bath | 2 Car Carport | 3016 SQ. FT. Living Area
308 El Paso St | Modern Luxury in Austin’s Coveted Dawson Neighborhood
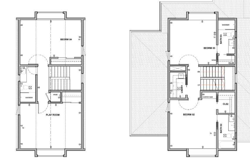
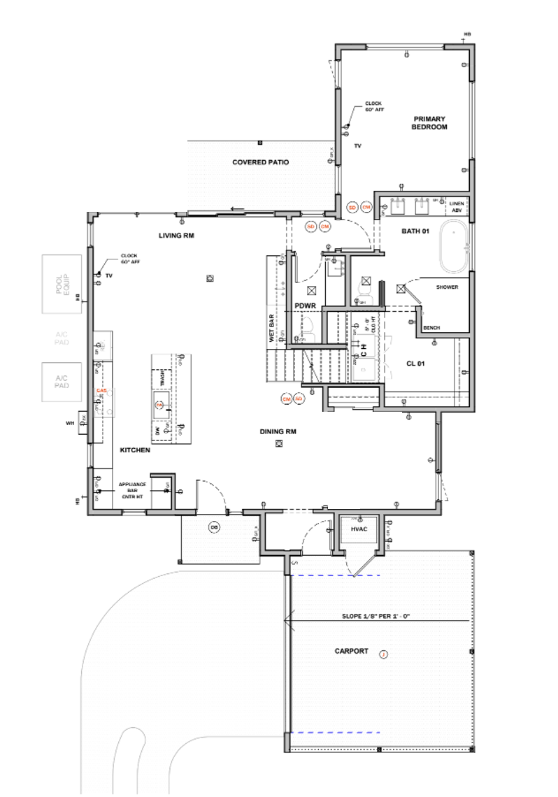
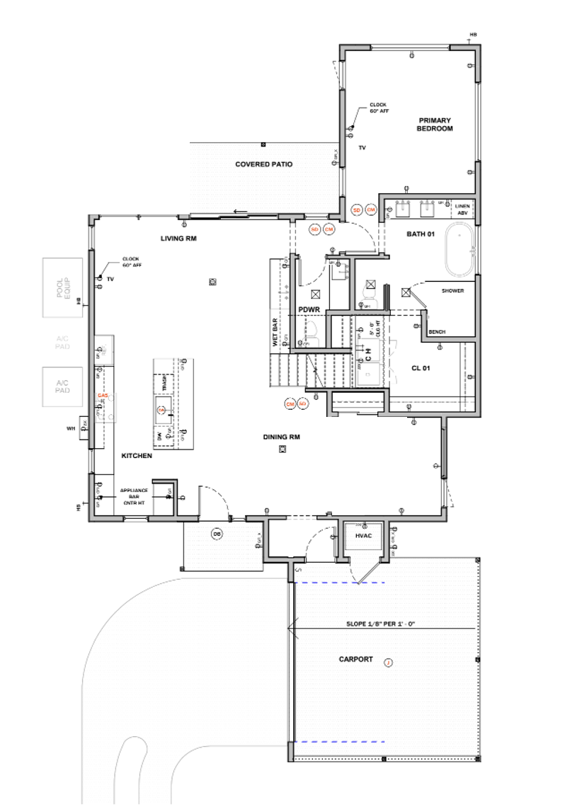
Crafted by Skiera Homes in partnership with J&S Construction and designed by R&D Architecture, this brand-new 5 bedroom, 4.5 bath residence blends modern architecture, timeless finishes, and everyday functionality. Thoughtfully designed with a first-floor primary suite, multiple living areas, and flexible spaces ideal for an office, gym, or guest quarters, this home offers exceptional versatility for today’s lifestyle.
Step inside to white oak wood flooring throughout and floor-to-ceiling custom white oak cabinetry in the kitchen and primary suite. The chef’s kitchen features striking Taj Mahal quartzite counters, premium appliances, and an oversized island — perfect for cooking and gathering.
In a separate entertaining zone, a dedicated wet bar offers floating shelves, a built-in wine fridge, and sink. Ideal for hosting guests or enjoying an evening drink.
Natural light floods the home through large black Andersen windows, enhanced by skylights and step lighting along the staircase. The primary suite features a spa-like bath and a walk-in closet with dedicated washer/dryer hookups, while each additional bedroom offers custom closets and thoughtful touches such as built-in desks, nooks, and storage.
Designed for indoor-outdoor living, the backyard features a modern design with cedar fencing and steel posts for privacy and durability. The two-car carport is wired for an EV charger, with the option to add a garage door for enhanced privacy.
Full-price offer incentives include:
Modern outdoor grill kitchen
Pool installation (fully permitted by the City of Austin)
Highlights include:
Spray foam insulation throughout, including between floors, for optimal comfort and noise reduction
Durable metal roof on the upper level and shingles on the first floor for longevity
Smart home integration with Google Home — Nest thermostats, Nest doorbell camera, Yale x Nest keyless entry
Landscape irrigation
Downtown Austin views from upper floors
No HOA and a highly walkable location just minutes from South Congress and Zilker Park
With its energy-efficient design, premium finishes, and prestigious design/build team, this Dawson modern offers both luxury and flexibility, giving buyers the choice to enhance their new home with curated full-price incentives in one of Austin’s most desirable neighborhoods.
EVAN ST RAYMOND
TITLE Realtor® at The Marye Company | Developer at Skiera Homes
Phone (512) 744-3522
EMAIL evan@skierahomes.com